Угол 60x40мм внешний изменяемый 70-120 градусов (DKC) 01707
- Описание
-
Подробности
Полное описание товара Угол 60x40мм внешний изменяемый 70-120 градусов (DKC) 01707
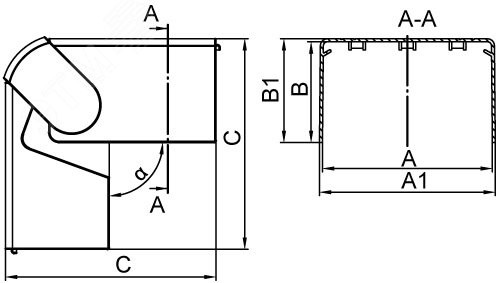
Классические короба и кабель-каналы серии ''In-liner Classic'' выполнены в белом цвете, который отлично подходит как для оформления офисных помещений, так и для жилых. Мини-каналы и короба серии имеют прямоугольную форму. Скромность и функциональность этой серии определяет ее популярность. Входящие в серию аксессуары применяются для простой сборки и оформления кабельной трассы на основе мини-каналов и коробов. Широкий ассортимент изделий позволяет создавать уникальные решения, отвечающие требованиям заказчика. Изделия изготавливаются из прочного пластика, устойчивого к появлению царапин, и покрываются защитной пленкой, предотвращающей повреждения при транспортировке и монтаже. Внешний угол устанавливается на стык трассы и служит для эстетичного оформления углов. Он имеет регулируемый диапазон от 70 до 120 градусов. Аксессуар предназначен для коробов 60х40 мм.
Входит в состав огнестойкой кабельной линии (ОКЛ) - это кабельная линия и электропроводка, способнаясохранять работоспособность в условиях пожара. ОКЛ– сертифицированная система, состоящая из огнестойкого кабеля и кабеленесущих систем.
Характеристики:
- Тип изделия: Угол внешний
- Материал изделия: Пластик
- Цвет: Белый
- Длина, мм: 95.8
- Ширина, мм: 60
- Степень защиты: IP40
- Высота, мм: 40
- Климатическое исполнение: УХЛ4
- Количество вводов: 2
- Количество отсеков: 1
- Масса, кг: 0.112
- Рекомендованный проектный ассортимент: Да
- Дополнительная информация: Угол: 70-120 градусов
- Не содержит галоген: Да
Документация:
Страница каталога
Видеоматериалы
Видеоинструкция по монтажу
Видеоматериалы
Чертеж - Характеристики
-
- Тип изделия: Угол внешний
- Материал изделия: Пластик
- Цвет: Белый
- Длина, мм: 95.8
- Ширина, мм: 60
- Степень защиты: IP40
- Высота, мм: 40
- Климатическое исполнение: УХЛ4
- Количество вводов: 2
- Количество отсеков: 1
- Масса, кг: 0.112
- Рекомендованный проектный ассортимент: Да
- Дополнительная информация: Угол: 70-120 градусов
- Не содержит галоген: Да


